东莞市南方半导体科技-静电接地工程
发布时间:2021-12-13浏览次数:2099

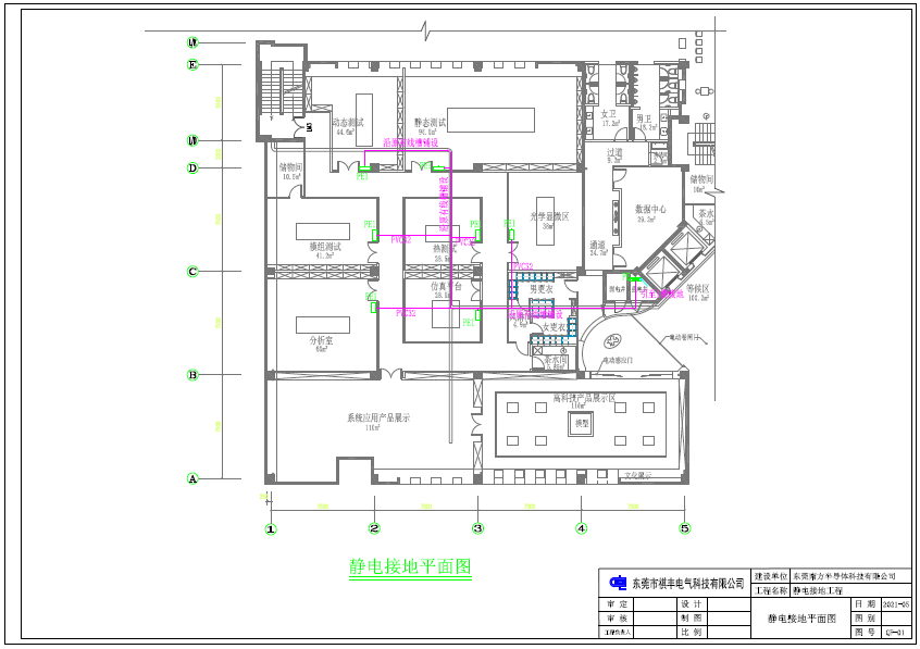
项目名称:静电接地工程、电缆安装
项目地址:东莞市松山湖
项目简介:
东莞南方半导体科技有限公司是中国第三代半导体产业南方基地,是依据国家新兴材料和新能源等8大战略性新兴产业的“十三五”发展规划,依据国家第三代半导体产业技术创新联盟、广东省科技厅及东莞市政府签署的“依托东莞市建设第三代半导体产业南方基地”的合作备忘录指示精神。
本次项目受南方半导体诚邀完成了试验、检测等设备的静电接地工程。
现场相关图集:

下一篇:意拉德电子-配电柜维修

